Dům Algorfa
algorfaDům Algorfa
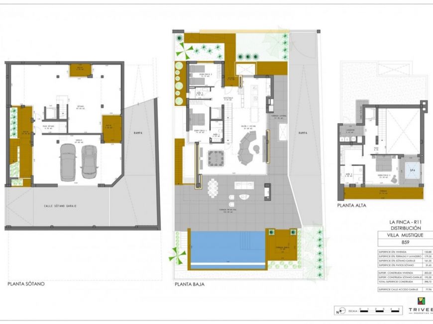
algorfaNOVÁ LUXUSNÍ VILA NA PRVNÍ ČÁSTI GOLFOVÉHO HŘIŠTĚ ALGORFA Nová golfová vila v první linii golfového resortu La Finca. Luxusní dvoupatrová vila se 3 ložnicemi, 3 koupelnami, hlavním apartmá se šatnou, podlahovým vytápěním (v celém prostoru), soukromou zahradou s nekonečným bazénem a posezením, systémem domácí automatizace, systémem domácí automatizace, podzemní garáží. La Finca Golf Resort, který se nachází v obci Algorfa, v Vega Baja na řece Segura, toto malé město se tradičně věnuje zemědělství, zejména pěstování artyčoků a citrusových plodů. Algorfa má infrastrukturu kvalitních služeb, která vám umožní žít pohodlně. V blízkosti nádherných pláží Guardamar a Torrevieja, kde si můžete užívat teplou vodu a opalovat se více než tři sta dní v roce. V těchto turistických městech najdete také nákupní centra, restaurace a možnosti zábavy. Letiště Alicante je vzdáleno 40 minut jízdy a letiště Murcia 55 minut jízdy.



























