Dům Torre-pacheco
torre-pachecoDům Torre-pacheco
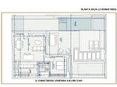
torre-pachecoNOVÉ VILY V ROLDAN Nové luxusní domy s velkou zahradou, soukromým bazénem, nepřekonatelnou kvalitou stavby v Roldanu. Díky našim zkušenostem a kritickému oku mají vily prvky, které jsou očím neviditelné: Domy mají velmi praktické dispoziční řešení. V přízemí se nachází nejen ložnice s vlastní koupelnou, ale i samostatné WC a komora. V patře jsou 2 ložnice s velkou koupelnou. Z obou pokojů je vstup na terasu s výhledem do zahrady a respektující soukromí každého obyvatele projektu. Kvalita výstavby těchto domů nemá v segmentu obdoby! Pracujeme podle nejlepších standardů izolace a navíc montujeme kvalitní hliníková okna s tepelným mostem a dvojskla jsou vybavena speciálním solárním filtrem. Tímto způsobem garantujeme extrémně energeticky úsporný dům. Pokud jde o povrchovou úpravu, vybrali jsme lídra na trhu s keramickými dlaždicemi, společnost Porcelanosa. Celý dům je standardně vybaven jejich luxusními materiály, od podlah zevnitř i zvenku, po obklady a přírodní kámen v koupelně, koupelnové skříňky a luxusní vodovodní baterie v celém domě. Kuchyně je také v Porcelanosa a disponuje 8 cm silnou pracovní deskou XTone Všechny spotřebiče včetně indukční varné desky s integrovaným odsavačem par od Balay jsou standardně součástí. Vnější fasáda ve stylu Ibizy se zaoblenými rohy a terakotovými mozaikami vytváří dokonalou náladu pro relaxaci. Vy jako kupující máte možnost skutečně personalizovat dokončení Vaší vily! Provedeme vás všemi možnostmi prezentovanými v showroomu Porcelanosa Murcia, abyste si mohli vytvořit domov svých snů zcela podle vlastního vkusu. Komplex má ideální polohu v klidné vilové čtvrti jen 2 minuty chůze od rušného centra vesnice Roldan. Roldan má veškeré potřebné vybavení, jako je lékárna, lékař, široký výběr restaurací a barů, fitness, padel a mnoho dalšího. Méně než 5 minut jízdy od domu si můžete užít golfová hřiště La Torre nebo Las Terrazas de La Torre. Obě jsou prestižní 18jamková golfová hřiště a najdete zde ještě více skvělých restaurací a barů, až k hotelu Doubletree by Hilton. Jen 15 minut jízdy od pláží Mar Menor a 20 minut od krásných měst Murcia a Cartagena. Roldan je ideálním místem, kde si můžete užít klid typické španělské vesnice a zároveň být blízko ruchu měst nebo pobřeží. Nakupování je možné do 25 minut jízdy od slavného bulváru Zenia nebo 35 minut od krásného Nueva Condomina.





















