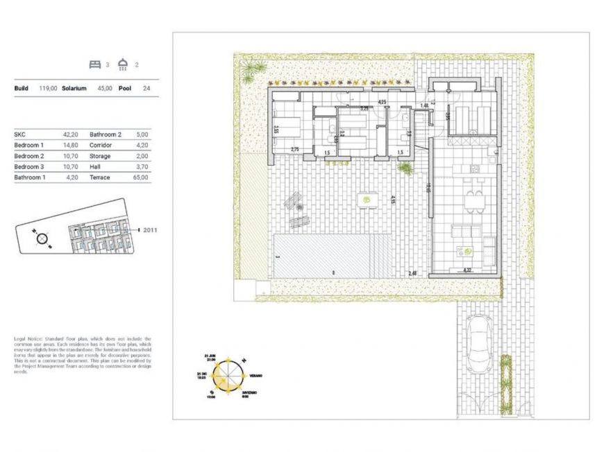
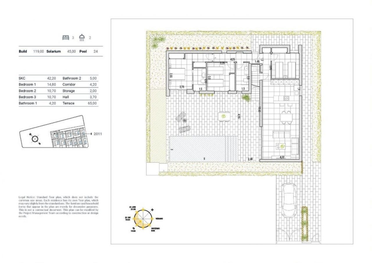
LUXUSNÍ VILA PO GOLFOVÉM HŘIŠTĚ. Užijte si klid života v privilegovaném prostředí. Jedinečná poloha vedle golfového hřiště La Finca. V klidné a zdravé krajině obklopené přírodou a se širokou nabídkou sportovních a volnočasových služeb. Pár kilometrů od nejpůsobivějších pláží Costa Blanca. Tyto vily nás spojují se starodávnou středomořskou kulturou a stavebními tradicemi v kombinaci s moderní architekturou a vytvářejí okouzlující domy, které jsou v popředí vesmírných a designových trendů. Na jednom podlaží navrženém pro maximální využití světla s L-rozvodem, který ideálně odděluje obývací a kuchyňský prostor od relaxačních prostor. Domy mají 3 ložnice a 2 koupelny, na velkých pozemcích přes 300 metrů, s vlastním bazénem, parkováním a soláriem, v nejlepším golfovém prostředí. Všechny vily jsou mimo jiné vybaveny aerotermálním vzduchem, předinstalací vzduchotechniky, domácí automatizací, hliníkovými okny s elektrickými žaluziemi, kuchyňským nábytkem, alarmem, koupelnami vybavenými nábytkem, zástěnou a podlahovým vytápěním nebo automatickou závlahou na zahradě.



























