Apartmány / byty La-nucia
la-nuciaApartmány / byty La-nucia
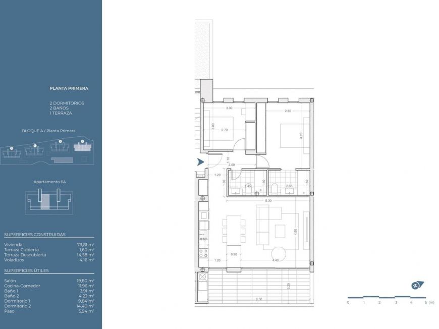
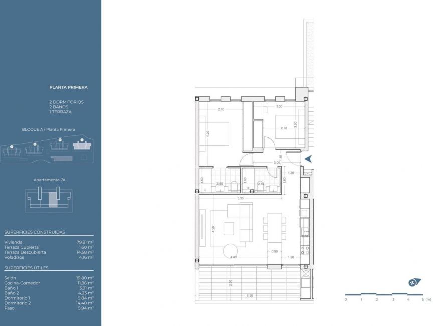
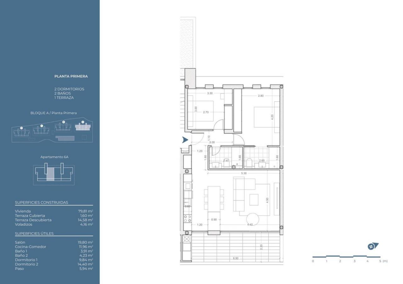
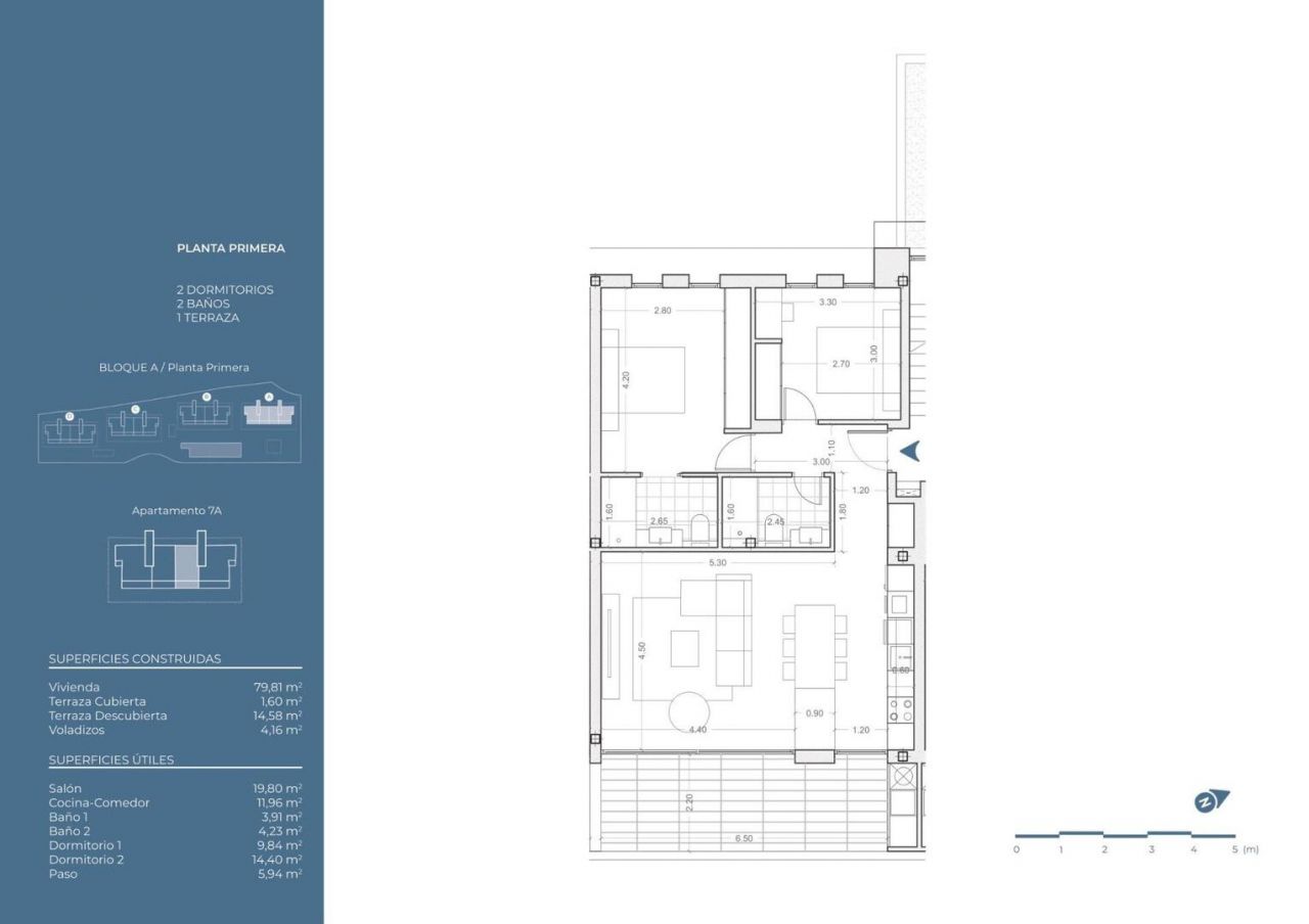
la-nuciaNOVÝ REZIDENČNÍ KOMPLEX V LA NUCIA Nový rezidenční komplex apartmánů a penthousů s venkovním společným bazénem, parkováním, komorou, výtahem, posilovnou, komunitními lázněmi s krytým vyhřívaným bazénem, saunou, vířivkou v La Nucia. Moderní nemovitost se 2 a 3 ložnicemi, všechny se 2 koupelnami, otevřenou kuchyní s prostorným obývacím pokojem, vestavěnými skříněmi, terasou, podzemním parkováním. Penthousy mají soukromá solária. Dokonalost avantgardní architektury, vynikající povrchové úpravy a vysoce kvalitní služby, urbanizace snů pro ty, kteří hledají nejvyšší úroveň pohodlí a odlišnosti. Interiéry, které kombinují elegantní design a současnou sofistikovanost, vytvářejí prostory, které se každý den promění ve výjimečný zážitek z pohodlí a pohody. Německá designová kuchyně, Burger nebo podobná, s pracovní deskou Silestone, plně vybavená. domácí spotřebiče Siemens nebo podobné. Ve spotřebičích je zabudována indukční varná deska, digestoř, trouba, lednice a myčka. Vyztužené vstupní dveře se zámkem, zakončené lakovanými panely, aby ladily s truhlářstvím. Je možné nainstalovat zámek s dálkovým ovládáním ze smartphonu nebo tabletu. Modulární šatní skříně s výklopnými nebo posuvnými dveřmi, lakované tak, aby ladily se zbytkem truhlářského zboží, včetně kufru, zásuvek a věšáku. V bytě bude příprava na vysokorychlostní připojení k internetu. V koupelnách bude nízkoenergetické elektrické podlahové vytápění. Videovrátník bude elektronický s barevným obrázkem a vestavěným dálkovým ovládáním z telefonu nebo tabletu. Klimatizace Samsung. Každá místnost bude mít svůj vnitřní stroj a nezávislé ovládání. Klimatizace bude mít dálkové ovládání. Lze jej ovládat z telefonu nebo tabletu. Dojde ke kompletní instalaci vzduchotechniky vybavené tepelným čerpadlem zajišťujícím chlazení i vytápění. Rovněž bude použito sklolaminátové potrubí. Vnitřní jednotky budou umístěny v podhledu v koupelnách a na chodbě a venkovní jednotka bude instalována v určeném prostoru projektu. Větrání. Instalace vnitřního systému výměny vzduchu v obytných prostorách s výfukovými otvory v koupelnách a kuchyních a hodinami pro programování rozvrhu. Bazén pro veřejnost s chlorovanými solemi a automatickou kontrolou PH a chlóru. V přízemí bude posilovna, krytý vyhřívaný bazén, jacuzzi, sauna, parní lázeň, chromoterapie a šatny s koupelnami. Velké terasy a zahrady s původními rostlinami pro víceúčelové využití ve společné oblasti. Po obvodu pozemku budou vysazeny rostliny, které svým růstem vytvoří v budově soukromou atmosféru. Ve společných prostorách bude instalován kamerový systém. Tento rezidenční komplex se nachází na privilegovaném místě mezi Nusia a Altea a vyznačuje se výjimečnou ekologií a vynikajícími službami v rámci urbanizace.













































