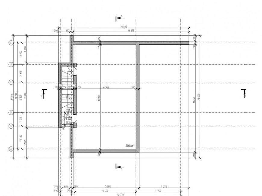
LUXUSNÍ NOVÁ VILA U PLÁŽE LAZENIA Nová vila s výhledem na moře v krásné oblasti "La Zenia". Vila o velikosti 333 m2 je postavena na pozemku o velikosti 619 m2 a nachází se 1 minutu chůze (79 m) od pláže La Zenia - druhá linie od pláže. Vila má 4 ložnice, 6 koupelen, otevřený obývací pokoj s kuchyní, 2 terasy, solárium, sklep, soukromý bazén a parkování na místě. Nedaleko je nákupní centrum "La Zenia", stejně jako restaurace, supermarkety, přístavy, kina, lékárny, veřejná doprava, zdravotní středisko atd. V souladu s vašimi přáními pro vás vytvoříme jedinečný domov, kde bude vše promyšleno do nejmenšího detailu. La Zenia se nachází na jihu Costa Blanca, jižně od velkého města Torrevieja. Tento úsek pobřeží je známý jako Orihuela Costa. La Zenia je malé, ale živé plážové turistické letovisko. Je zde mnoho restaurací, barů, obchodů a dobrá občanská vybavenost vzhledem k velkému množství lidí, kteří zde žijí po celý rok. Je zde mnoho irských barů, včetně slavného Paddy's. Většina barů ukazuje Sky Sports a v jedné z mnoha kaváren a restaurací je snadné najít dobrou celodenní anglickou snídani. Komplex se nachází 40 minut od letiště Alicante a 1 hodinu od letiště Murcia - Corvera.

























