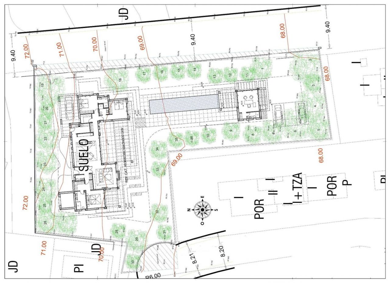
VILA V JAVEA Pozemek o rozloze 1 741 m2 je méně než 5 minut jízdy od pláže Javea a kousek od dalších zařízení, jako jsou supermarkety, restaurace a mezinárodní školy. Hlavní dům se točí kolem prostorné kuchyně s technickou místností, která slouží jako srdce domov. Kuchyně se může pochlubit dokonalou kombinací vnitřního a venkovního prostoru s dostatkem přirozeného světla a přístupem na velkou částečně zastřešenou verandu (naya), která vám umožní užívat si venkovní bydlení po celý rok. Na západní straně domu je obývací pokoj s krbem, který nabízí výhled na jihozápad a večerní úžasné západy slunce. Navíc se na této straně nachází hlavní ložnice s terasou, prostorná koupelna a šatna. Na východní straně domu jsou dvě prostorné ložnice, každá s vlastní koupelnou a terasou, takže jsou ideální pro hosty nebo rostoucí děti. Tato strana má vlastní vchod a lze ji uzavřít z hlavní budovy. Hlavní budova má výhled do zahrady, která obsahuje obdélníkový bazén 14x3 metry - ideální místo pro koupání. Dům má také studio, které lze předělat podle vašich preferencí, ať už jde o studio pro hosty nebo domácí kancelář. Na pozemku je parkovací místo pro několik aut a hosté mohou snadno zaparkovat na široké, klidné ulici. VÝHODY: - Centrální poloha - Blízká občanská vybavenost - Vysoká kvalita provedení - Flexibilní design interiéru - Vhodné pro všechny fáze života - Zahrnuje vydané stavební povolení - Výstavba může začít ihned . Nachází se na pobřeží Costa Blanca, 92 km od Alicante a 105 km od Valencie. Nachází se mezi dvěma mysy (La Nao a San Antonio), je omýváno vodami Středozemního moře a chráněno před kontinentálními větry horskou bariérou Montgo. . Proto je zde kontrastní krajina: pobřeží, hory a vnitrozemské zahrady a vinice. Javea byla městem, které se tradičně zabývalo obchodem a rybolovem, ale rozmanitost nabízených scenérií, mírné klima po celý rok a pečlivé urbanistické plánování z něj učinily jednu z nejdůležitějších turistických destinací ve Valencijské komunitě, aniž by ztratily kouzlo Středomořské rybářské vesnice Javea (Xabia) ležící 92 km od Alicante.





















