Dům Fortuna
fortunaDům Fortuna
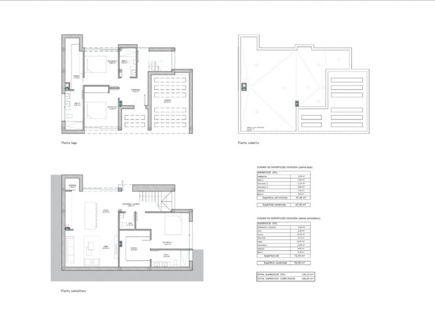
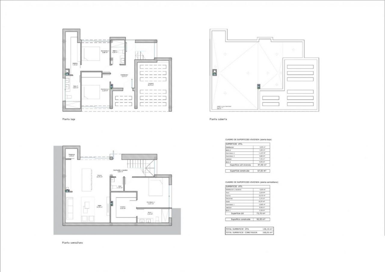
fortunaNOVÉ VILY VE FORTUNĚ Nové vily ve Fortuně, Murcia. Samostatná dvoupodlažní vila se 3 ložnicemi, 2 koupelnami, 2 šatnami, otevřenou kuchyní s obývacím pokojem, garáží, soukromou zahradou s bazénem. Fortuna je necelé 3 km daleko pro každodenní nákupy, zatímco Murcia je 25 km daleko a nabízí širokou škálu možností stravování a zábavy. Podnebí na Costa Cálida, které je často považováno za nejlepší v Evropě, umožňuje velmi společenský a zdravý venkovní životní styl, vyznačující se fantastickými sportovními a rekreačními zařízeními, se vzrušujícími a kosmopolitními turistickými městy, která vynikají poskytováním prvotřídních služeb, z nichž některé exkluzivní. Costa Calida Murcia má více než 300 slunečných dní v roce. Kromě golfových hřišť a přístavů, které si můžete užít podél celého pobřeží, nabízí tato oblast také možnosti lyžování v nedaleké pohoří Sierra Nevada, ráji milovníků zimních sportů s krásnou přírodní krajinou. Možnost užít si všechny druhy kulturních a zábavních nabídek nedalekých hlavních měst, jako je Murcia a Cartagena. Kousek ráje s výborným spojením do celé Evropy. Na letiště Alicante-Elche a Murcia-Corvera dojedete za hodinu.



























