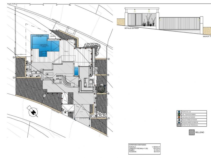
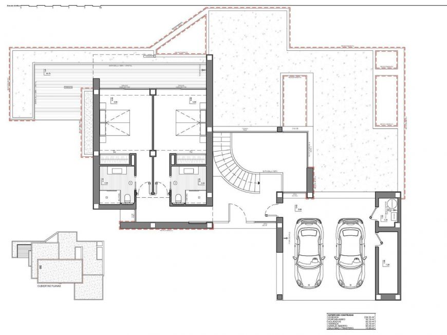
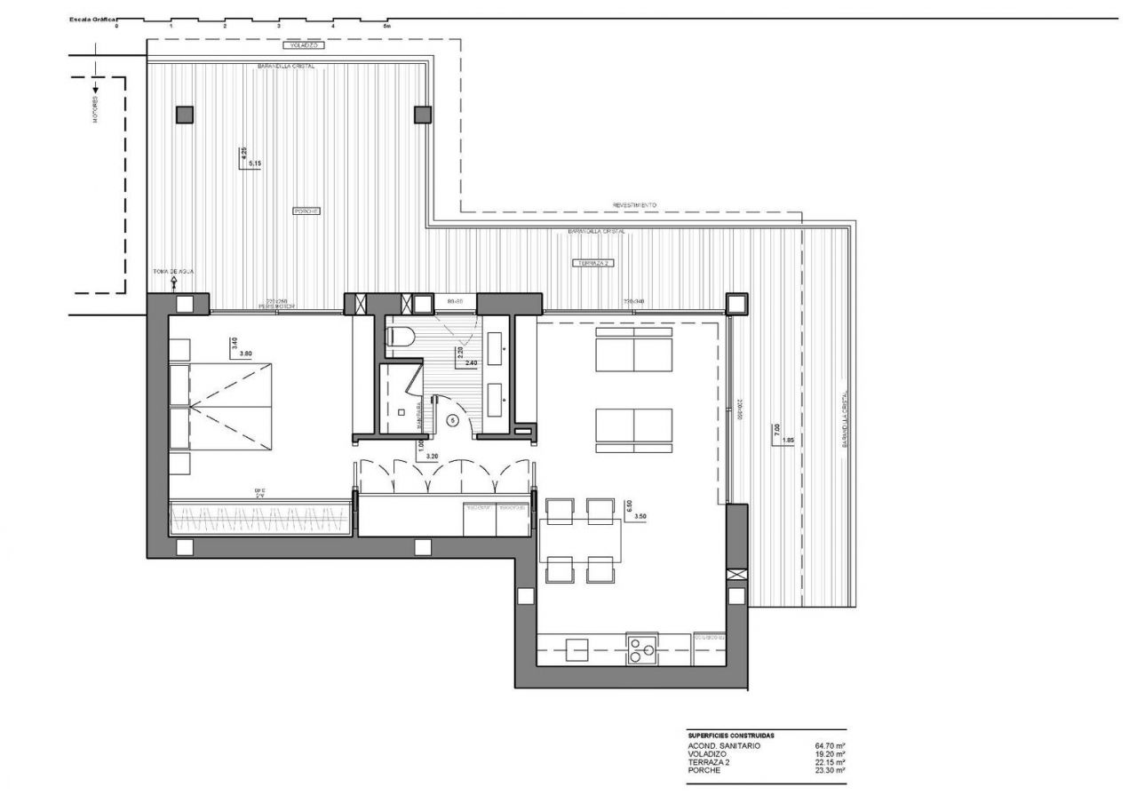
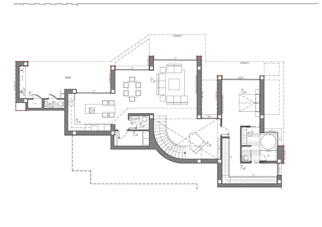
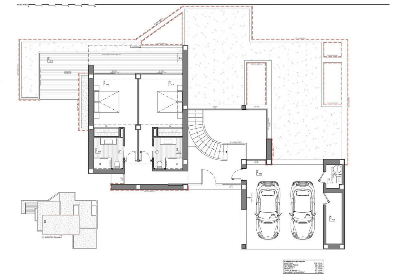
NOVÁ LUXUSNÍ VILA V CUMBR DEL SOL Ikonická novostavba vily v Benitachell. Jeho design 21. století dokonale zapadá do exkluzivního prostředí rezidenčního letoviska Cumbre del Sol. Je postaven na pozemku o rozloze 1168 m2, kde vzhledem k jihozápadní orientaci vily budete moci pozorovat a užívat si úžasné západy slunce. Vše na této vile vypovídá o kvalitě a stylu a promyšlený design nabízí praktické rozložení vily, které dále optimalizuje její výjimečný výhled na Středozemní moře. Dům s mnoha prostory pro relaxaci a rodinný život u moře. Je zde několik místností vzájemně propojených, takže můžete zažít různé okamžiky dne v různých prostředích. Jídelna a obývací pokoj, kuchyně s centrálním ostrůvkem, kde si můžete vychutnat perfektní snídani, a velká letní veranda s grilem. Všechny tyto pokoje jsou uspořádány tak, abyste si mohli užít dobrou konverzaci, oslavit důležité rodinné události nebo prostě jen relaxovat s výhledem na moře. Hlavní ložnice byla navržena s ohledem na pohodlí a relaxaci. Jedná se o soukromý prostor s velkou koupelnou s vanou a sprchovým koutem s výhledem na moře. K dispozici je také velká šatna a vstup na soukromou terasu. Cumbre del Sol se nachází v Benitachell, v srdci pohoří Llorenca, severně od Costa Blanca. Leží mezi dvěma pobřežními městy Javea a Moraira a je obklopeno výjimečnými chráněnými oblastmi, jako je přírodní park La Granadella. Velmi blízko jsou krásné pláže a zátoky, stejně jako města jako Denia, Calpe a Altea. Ať už strávíte pár dní, dovolenou, sezónu nebo celý rok v našem luxusním resortu v Benitachell, zjistíte, že Cumbre del Sol splní všechna vaše očekávání. Golfisté, potápěči, milovníci přírody a slunce jsou jen pár minut od desítek rájů Costa Blanca, které obklopují náš komplex.





























































