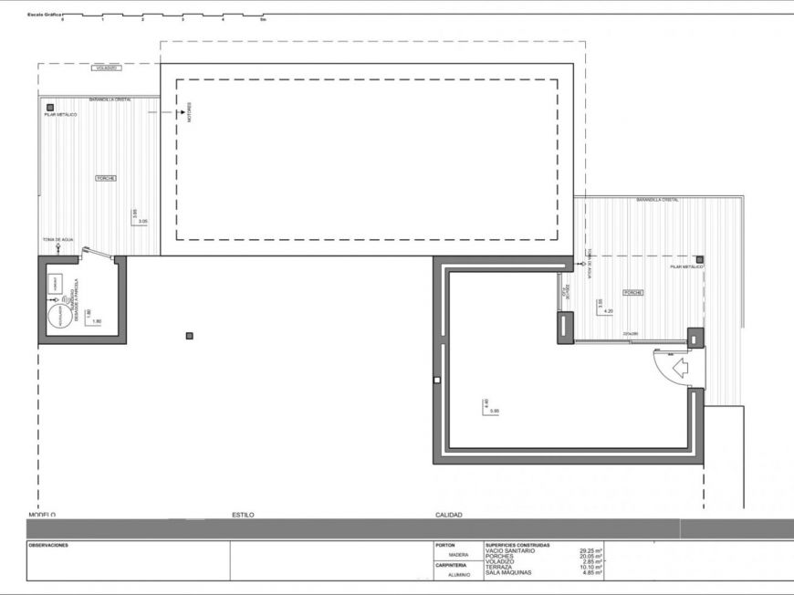
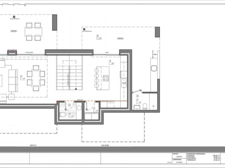
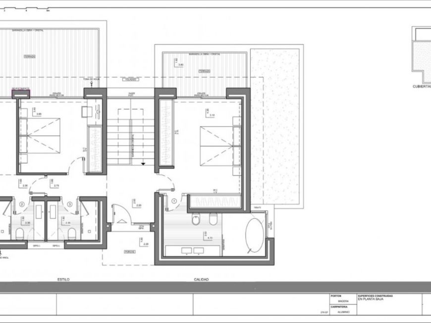
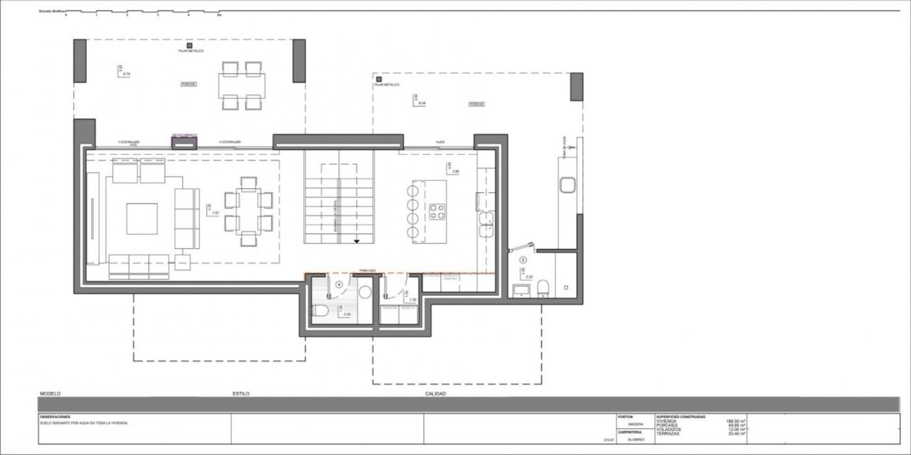
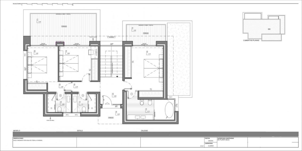
NOVÁ LUXUSNÍ VILA V Cumbre del Sol Odpočiňte si a unikněte tomu všemu, obklopeni neuvěřitelnými výhledy na moře, v této exkluzivní vile nacházející se v rezidenčním letovisku Cumbre del Sol. Nová luxusní vila je rozmístěna do několika pater, v otevřených a pohodlných prostorách, kde se protínají a stírají hranice interiéru a exteriéru. Projekt se světlými tóny, dřevem a spoustou přirozeného světla venku. Přístup do domu je přes nejvyšší patro s velkou halou, která obsahuje schodiště a vymezuje dva moduly vily. V tomto patře jsou umístěny 3 ložnice vily. V jednom křídle je hlavní ložnice, prostorná a světlá, s vlastní terasou a působivou koupelnou. V druhém křídle jsou další dvě ložnice, obě s en-suite koupelnami a velkou terasou. V přízemí se nachází obývací část, velká otevřená kuchyně s impozantním ostrůvkem, se snídaňovou lavicí, otevřeným výhledem na verandu, působivá letní jídelna s výhledem na moře, s grilem a venkovní koupelnou. Obývací pokoj s jídelnou má také sofistikovanou verandu, která dále umocňuje myšlenku „venkovního bydlení“ s několika relaxačními zónami vedle nekonečného bazénu a jacuzzi, abyste si užili krásné slunečné dny, které nabízí Costa Blanca, aniž byste ztratili ze zřetele Středozemní moře. Moře. Nemovitost nás nepřestává překvapovat, protože je zde také suterén o rozloze téměř 30 m², s verandou a soukromou terasou pro vytvoření jedinečného prostoru, od další ložnice, pracovního prostoru nebo čehokoli, co si nový majitel přeje. Rezidenční čtvrť se nachází v urbanizaci Cumbre del Sol, takže všechny nemovitosti v této oblasti také těží ze všech služeb dostupných v této urbanizaci, kde se nachází nákupní zóna se supermarketem, kadeřnictví, lékárna, bary a restaurace, mezinárodní škola Lady Elizabeth School a široká škála zařízení pro venkovní sporty s tenisovými a paddle kurty, turistickými stezkami, jezdeckou školou, nesmíme zapomenout na pláž Moraig s plážovými bary a zátoky Cala Llebeig a Cala Los Tiestos, vyznačující se krásou a kouzlo. Kromě toho jsou všechny restaurace a zařízení pro volný čas k dispozici v sousedních městech Benitachell, Javea (pouze 7 km) a Teulada Moraira (jen 4 km), které jsou světově proslulými prestižními turistickými destinacemi a nacházejí se na půli cesty mezi městy Alicante a Valencie. . Letiště Alicante je vzdáleno 1 hodinu jízdy.













