Apartmány / byty Costa-del-sol
costa-del-solApartmány / byty Costa-del-sol
costa-del-sol
Nemovitost již není v nabídce
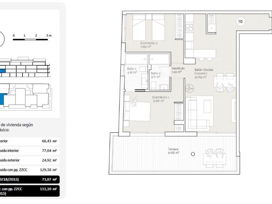
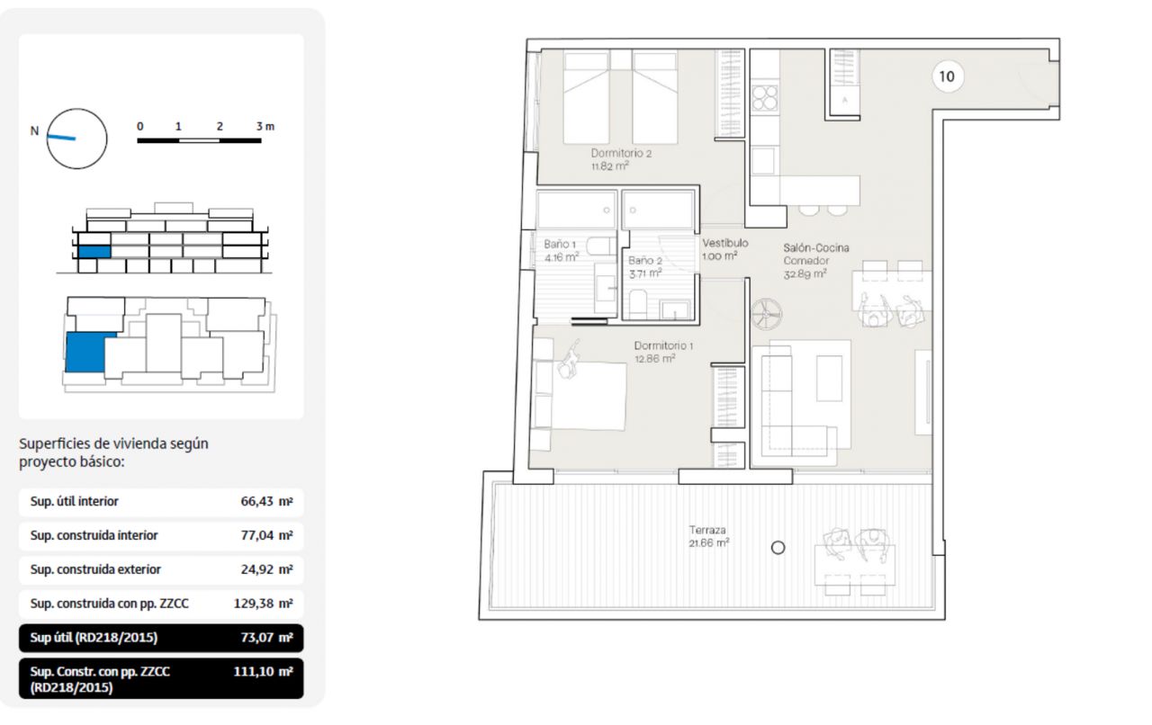
Prostorné, pohodlné a dobře navržené apartmány v plně vybaveném designovém rezidenčním komplexu 100 metrů od moře a pláže. Design tohoto rezidenčního komplexu sleduje čistou estetiku, která podporuje světlo v domech s penthousemi a velkými venkovními terasami. Vnitřní uspořádání je pečlivě promyšleno tak, aby vytvořilo útulné a funkční prostory. Efektivní organizace veřejných prostor, kompletní vybavení, energetická účinnost a vynikající kvalita materiálů dotvářejí komfort. Oblast Rincon de la Victoria v Malaze je oblíbeným místem s veškerým vybavením a zábavou, které potřebujete. Ceny dvoupokojových bytů od 62 metrů čtverečních se pohybují od 347 500 € do 445 000 €. Ke všem domům patří parkovací stání a komora.























