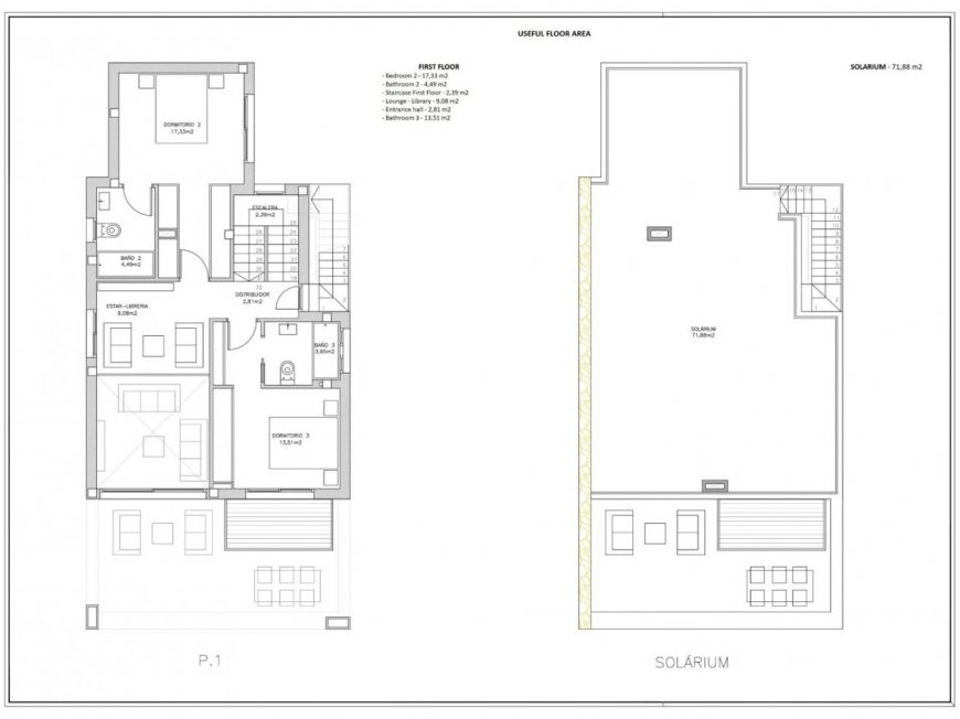
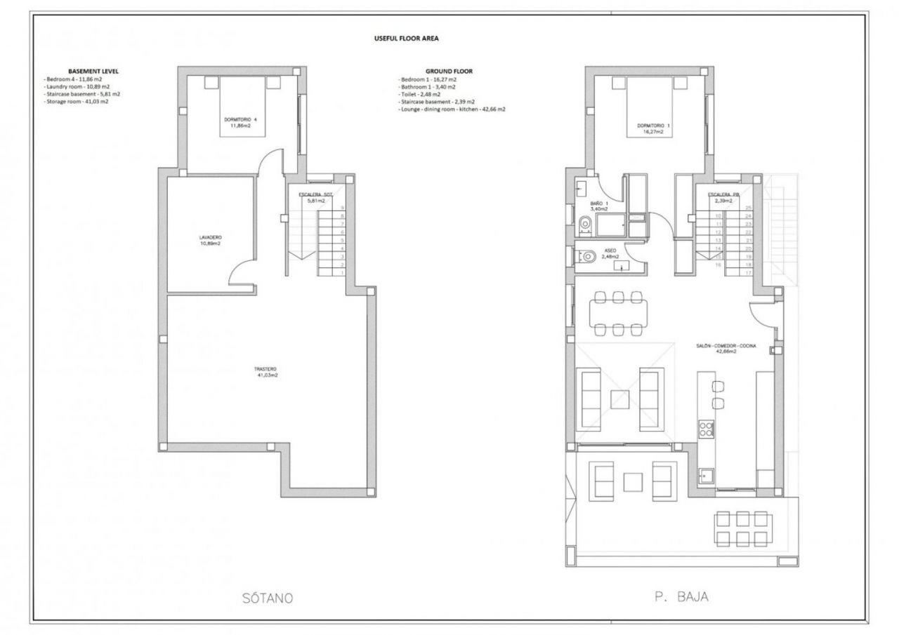
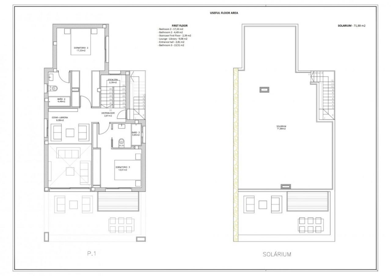
2 NOVÉ VILY V TORREVIEJA 2 nové krásné vily v Torrevieja. Vily mají 4 ložnice, 4 koupelny, otevřenou kuchyni s obývacím pokojem, vestavěné skříně, soukromou zahradu s bazénem a off-road parkovacím stáním, soukromé solárium a sklep. Vily se nacházejí 15 minut chůze od známého Playa de La Mata (5 minut autem). Torrevieja je španělské město v provincii Alicante na pobřeží Costa Blanca. Je známý pro své typicky středomořské klima a pobřeží. Podél jeho písečných pláží jsou nábřeží s letovisky. Malé muzeum moře a soli pořádá výstavy o historii rybolovu a výrobě soli ve městě. Hluboko ve městě, v přírodním parku Lagunas de La Mata Torrevieja, jsou stezky a dvě solné laguny, jedna růžová a druhá zelená. Letiště Alicante je vzdáleno 40 minut jízdy a letiště Murcia přibližně 1 hodinu jízdy.







