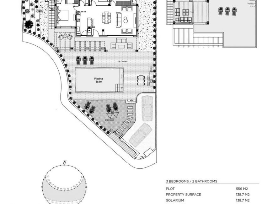
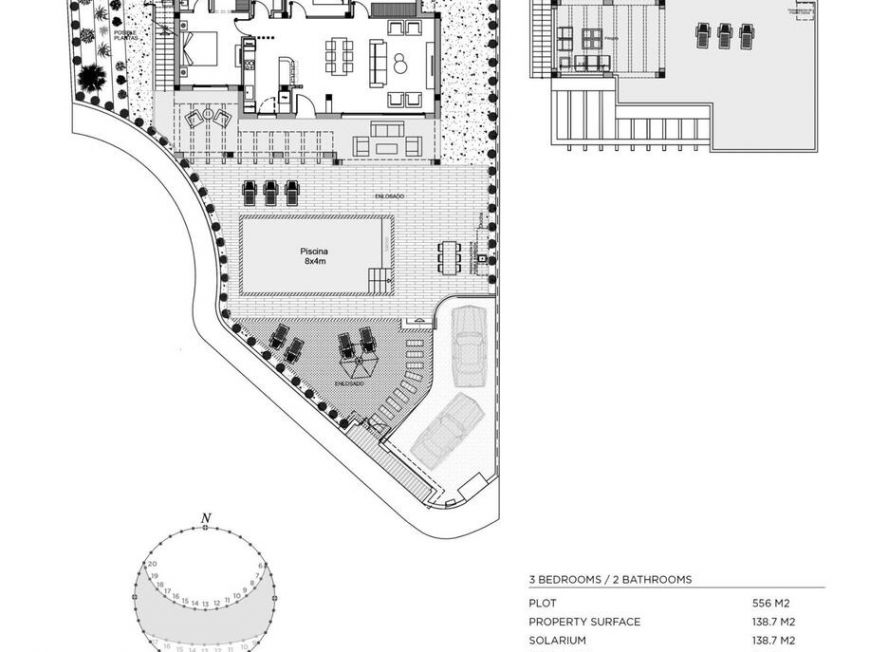
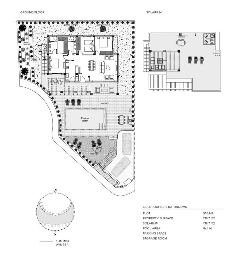
VILA V ROJALES Nádherná vila v moderním stylu se soukromou zahradou a soláriem v urbanizaci Doña Pepa, Rojales. Vila je postavena v 1. patře, má 3 ložnice a 2 koupelny, otevřenou kuchyni s obývacím prostorem, vestavěné skříně, privátní solárium, soukromou zahradu s bazénem a parkovací stání. Vila se nachází jen 2 minuty od golfového klubu La Marquesa, 5 minut od centra města a 10 minut autem od nádherných pláží Guardamar del Segura. Rojales je krásná vesnice se všemi službami, jako jsou supermarkety, lékárny, banky, restaurace a přírodní park v těsné blízkosti vil. V blízkosti je několik golfových hřišť a také vodní parky v sousedních Rojales a Torrevieja. Na letiště Alicante a Murcia dojedete za 45 minut.



















