Dům Pinoso
pinosoDům Pinoso
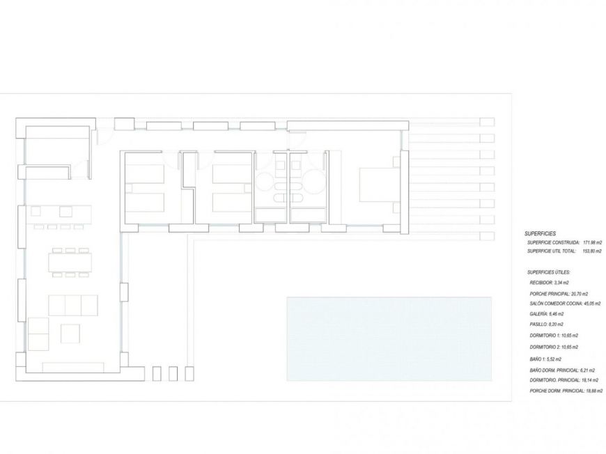
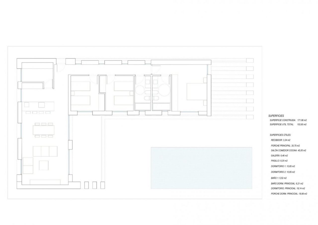
pinosoNOVÁ VILA V PINOSO Nová luxusní vila v Pinoso, provincie Alicante. Luxusní vila se 3 ložnicemi a 2 koupelnami, otevřenou kuchyní s jídelnou a obývací částí, soukromým bazénem a krytou terasou. Vila byla navržena s velkými okny, která přinášejí světlo, a pokoje s otevřeným plánem umožňují inovativní další prostor. Vynikající kvalita konstrukce s moderním vybavením, stejně jako působivá poloha, příkladná infrastruktura s nedotčenými, panoramatickými výhledy na hory a údolí plné mandlovníků a olivovníků a vinic produkujících místní víno, dělají z této oblasti moderní oázu pohody a okolní příroda je nádherná v hojnosti. Máte na výběr ze všech kuchyňských a koupelnových obkladů a podlah a dokonce i ze stylu vaší kuchyně, abyste si ji vyrobili a přizpůsobili design uvnitř jen pro vás Stavební firma Architect s vámi bude spolupracovat a v případě potřeby poradí se všemi požadovanými změnami dělat. V případě potřeby můžete zvětšit velikost této vily, můžeme vám poskytnout odhad. Zde můžete bydlet volně a mít veškeré každodenní vybavení pouhých 10 minut odtud, můžete cítit vůni divokých bylin a relaxovat ve své vlastní středomořské zahradní oáze. Nové projekty mimořádného designu a vynikající kvality se staví v LAS COLINAS, který se nachází v přírodním parku s pohádkovými výhledy na hory a mandlové sady, ale zároveň kousek od místní vesnice a pouhých 6 minut jízdy od Pinoso, nedaleko obce Úbeda, která se nachází na jihu Costa Blanca.

















