Nemovitost již není v nabídce
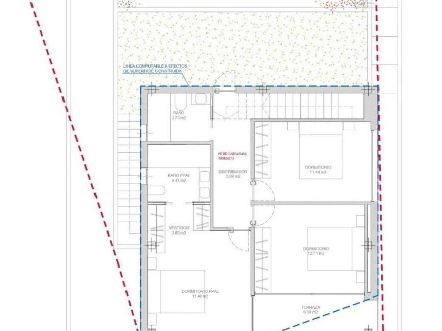
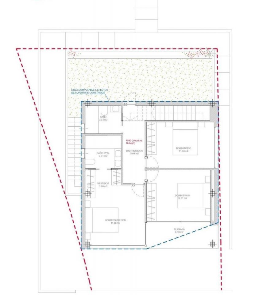
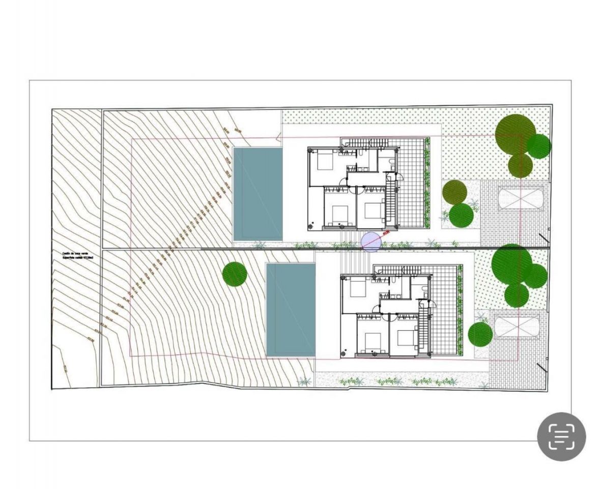
Komplex 2 mezonetových vil v Pinar de Campoverde se 4 ložnicemi a 3 koupelnami 180 m2, velký pozemek 700 m2. Plně vybavená kuchyň a obývací pokoj s jídelnou. Indukční varná deska na ostrůvku. Plně vybavené koupelny. Soukromý bazén od 38 m2 s jacuzzi. Terasy od 24 m2, solárium s výhledem na moře, soukromá zahrada. Instalace videovrátníku Předinstalace klimatizace. Parkování na místě. Klíče budou připraveny v červenci 2025. Podrobnější informace na telefonním čísle WhatsApp +34 664 25 63 71.





































