Dům Moraira
morairaDům Moraira
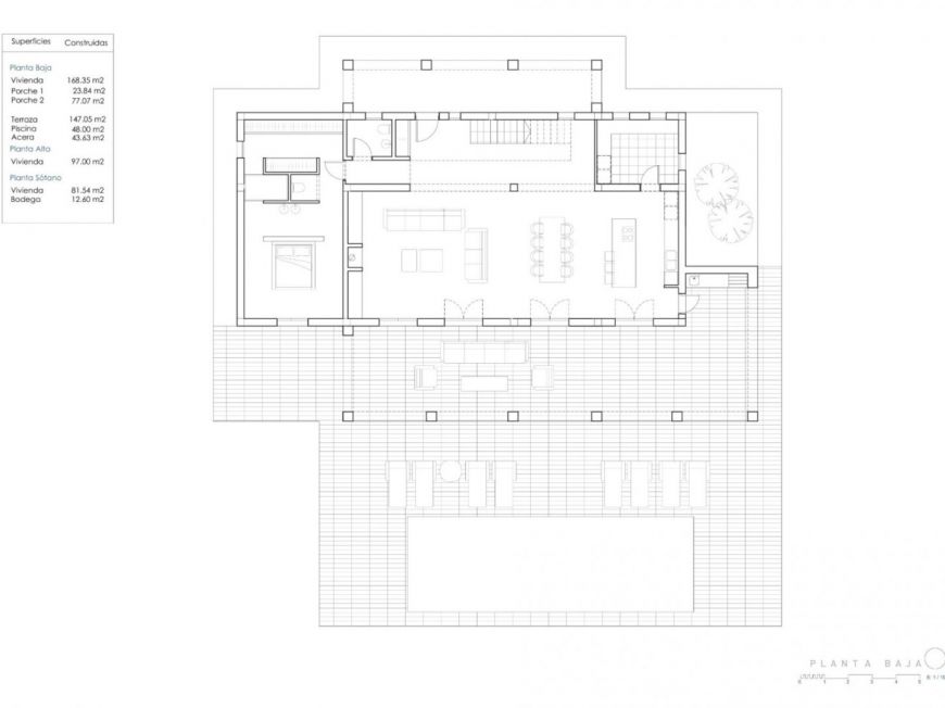
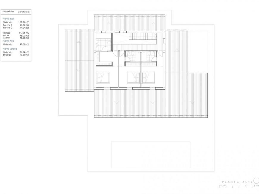
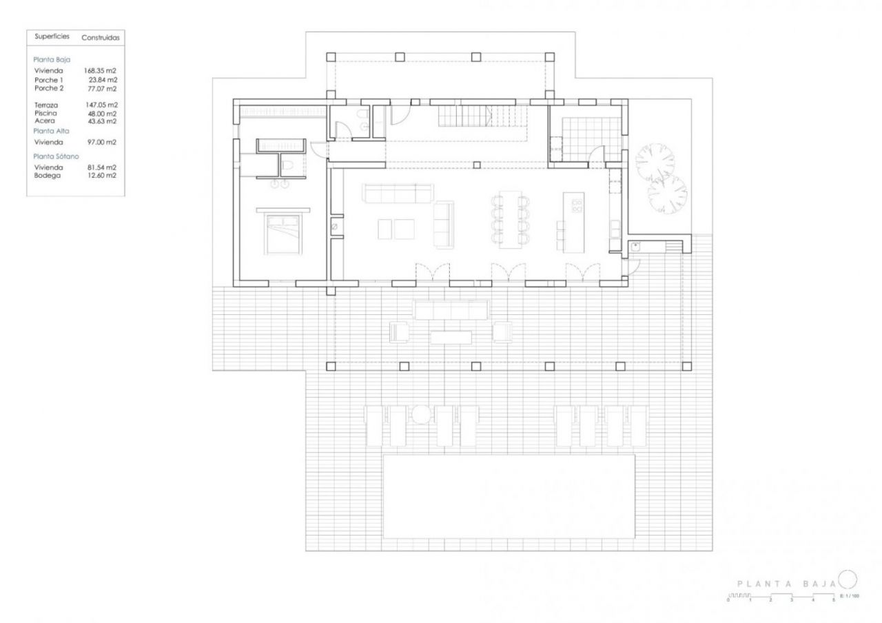
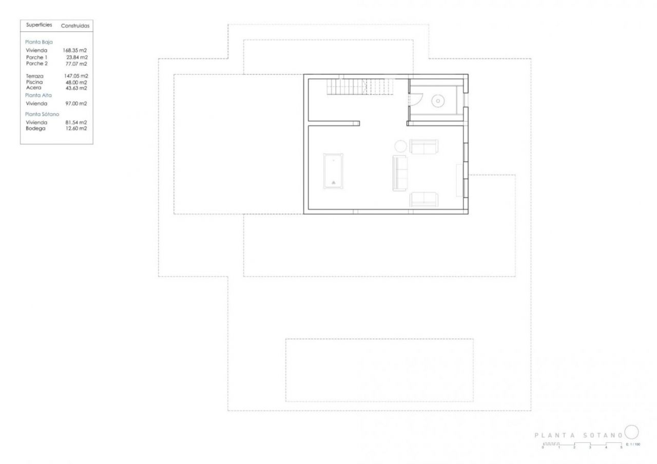
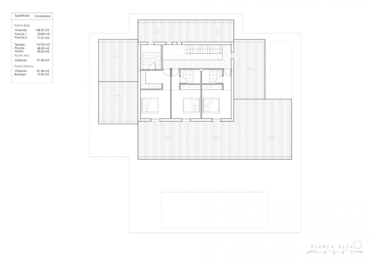
morairaNOVÁ VILA V MORAIRA S VÝHLEDEM NA MOŘE Nová vila v Moraira s vlastním bazénem a výhledem na moře. V přízemí se nachází velký otevřený prostor obývacího pokoje-jídelna a kuchyně, hlavní ložnice s šatnou a koupelnou, přední terasa se vstupem k bazénu. Ve druhém patře jsou 3 ložnice s vestavěnými skříněmi, 3 koupelny. K dispozici je také sklep 81 m2 s vinným sklepem. Vila bude postavena z vysoce kvalitních materiálů. Kuchyň si vybere klient, kuchyňské linky, pracovní desky a spotřebiče. Klimatizace se systémem klimatizace (kondenzace) v obývacích pokojích a ložnicích. značka Mitsubishi. Bazén bude vybudován s venkovní sprchou (přípojka teplé/studené vody). Automatické vjezdové brány pro automobily s dálkovým ovládáním a automatickými dveřmi pro pěší. Zahrada dle výběru klienta. Moraira je malé město s dobrými restauracemi, bary a mnoha supermarkety. V blízkosti města je velmi pěkná pláž, která je skvělá pro rodinnou dovolenou. Promenáda nabízí nádherný výhled na Penon Ifach přes záliv v Calpe. Stojí za to jet po pobřežní silnici, abyste si užili dechberoucí výhledy. Moraira se nachází přibližně 1 hodinu 15 minut severně po dálnici A7 od letiště v Alicante a je poměrně snadno dosažitelná. Zhruba ve stejné vzdálenosti nebo o něco méně na jih od letiště ve Valencii.













