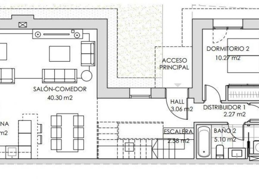
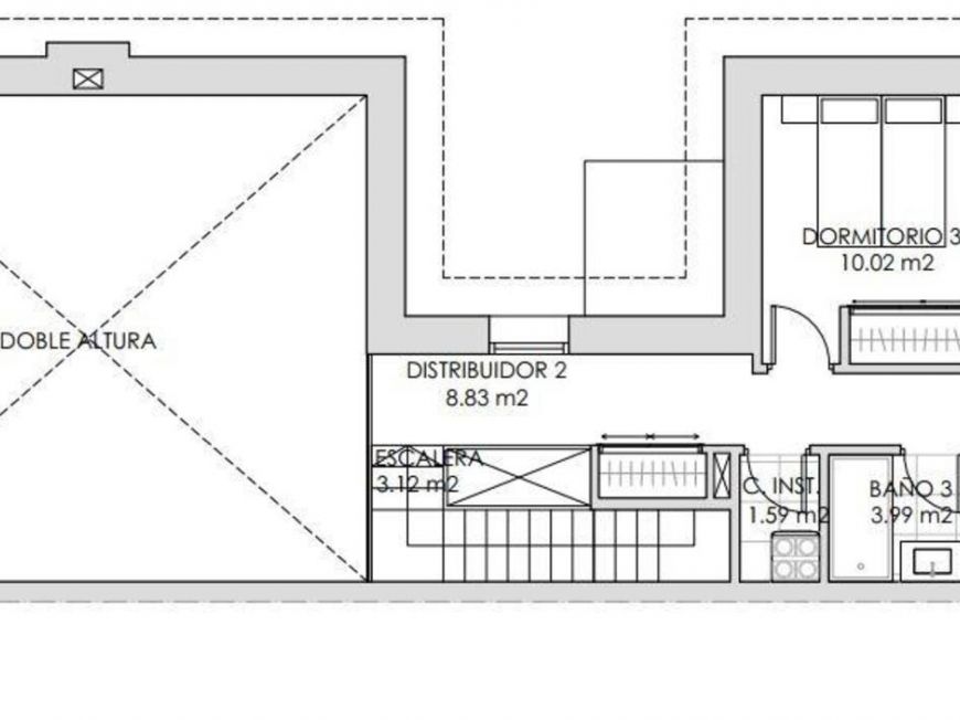
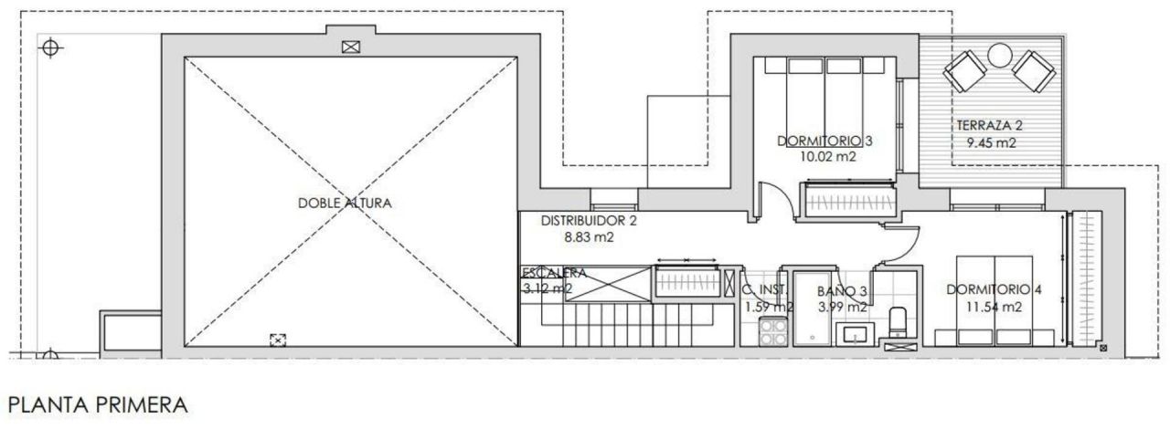
Moderní samostatně stojící vily se 4 ložnicemi a pozemkem v ceně od 679 000 eur Nemovitost se nachází mezi Torrelodones a Galapagar, v provincii Madrid. Prostorné terasy a zahrady o rozloze až 340 m2 vám umožní relaxovat na čerstvém vzduchu a užívat si nádherné klima. Všechny vily mají vlastní bazén a parkoviště pro dvě auta. Uzavřený prostor Obecná charakteristika: - plastová okna s dvojitým zasklením - vstupní dveře s bezpečnostním systémem - vestavěné skříně - plovoucí laminátová podlaha - keramická dlažba v koupelnách - rozvody vody a vzduchotechniky s podlahovým vytápěním a chlazením - dvojité. -průtokové větrání Rezidenční komplex ponořený do zelených zahrad, který se nachází na privilegovaném místě obklopeném přírodou, ale přesto jen pár minut jízdy od Madridu. Současná architektura a design nabízí jedinečnou kombinaci elegance a pohodlí. Nedaleko se nachází Real Club de Golf Las Rozas. V blízkosti komplexu jsou hory Sierra de Guadarrama a jen 20 minut autem od Madridu, to jsou ideální podmínky pro ty, kteří hledají život v harmonii s přírodou a klidem. Dopravní spojení se nachází 25 km severozápadně od Madrid , pohodlný přístup na dálnici A-6, odkud se do hlavního města dostanete autem asi za 20 minut. Nádraží Cercanías de Torrelodones Colonia je od komplexu vzdálené necelý 1 km a na nádraží Atocha do 30 minut dojedete od letiště Adolfo Suárez Madrid-Barajas přibližně 30 km od Torrelodones a je snadno dostupné autem i veřejnou dopravou. Madridský příměstský vlak linka C-1 spojuje nádraží Chamartín s letištěm a autobus 827 také zajišťuje přímé spojení na letiště z Torrelodones a Galapagaru.

























