Dům Fuente-alamo
fuente-alamoDům Fuente-alamo
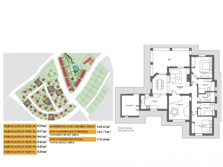
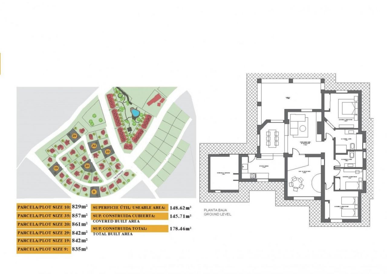
fuente-alamoPŘIPRAVENÁ VILA S KLÍČEM VE FUENTE ALAMO, MURCIA Obytný komplex městských domů, samostatných a dvojdomů ve Fuente Alamo, Murcia Na výběr je sedm různých modelů domů navržených tak, aby vyhovovaly každému vkusu. Rustikální design v kombinaci s vysoce kvalitními materiály a důrazem na komfortní obytný prostor si na své přijde každý Obyvatelé této soukromé komunity krásných prostorných domů si také užijí vlastní společné zahrady a bazény 2 koupelny, samostatná kuchyň, obývací pokoj s terasovými dveřmi vedoucími na krytou verandu Možnost soukromého bazénu za příplatek Fuente Álamo de Murcia je město a obec v regionu Murcia v jižním Španělsku. Nachází se 22 km severozápadně od Cartageny a 35 km jihozápadně od Murcie. Město leží v povodí řeky Mar Menor, obklopené horami Algarrobo, Los Gomez, Los Victorias a Carrasca Voda z těchto hor teče do Rambla de Fuente Alamo a poté do Mar Menor. Fuente Alamo se nachází 30 minut jízdy od letiště Murcia - Corvera.







































































