Dům Fuente-alamo
fuente-alamoDům Fuente-alamo
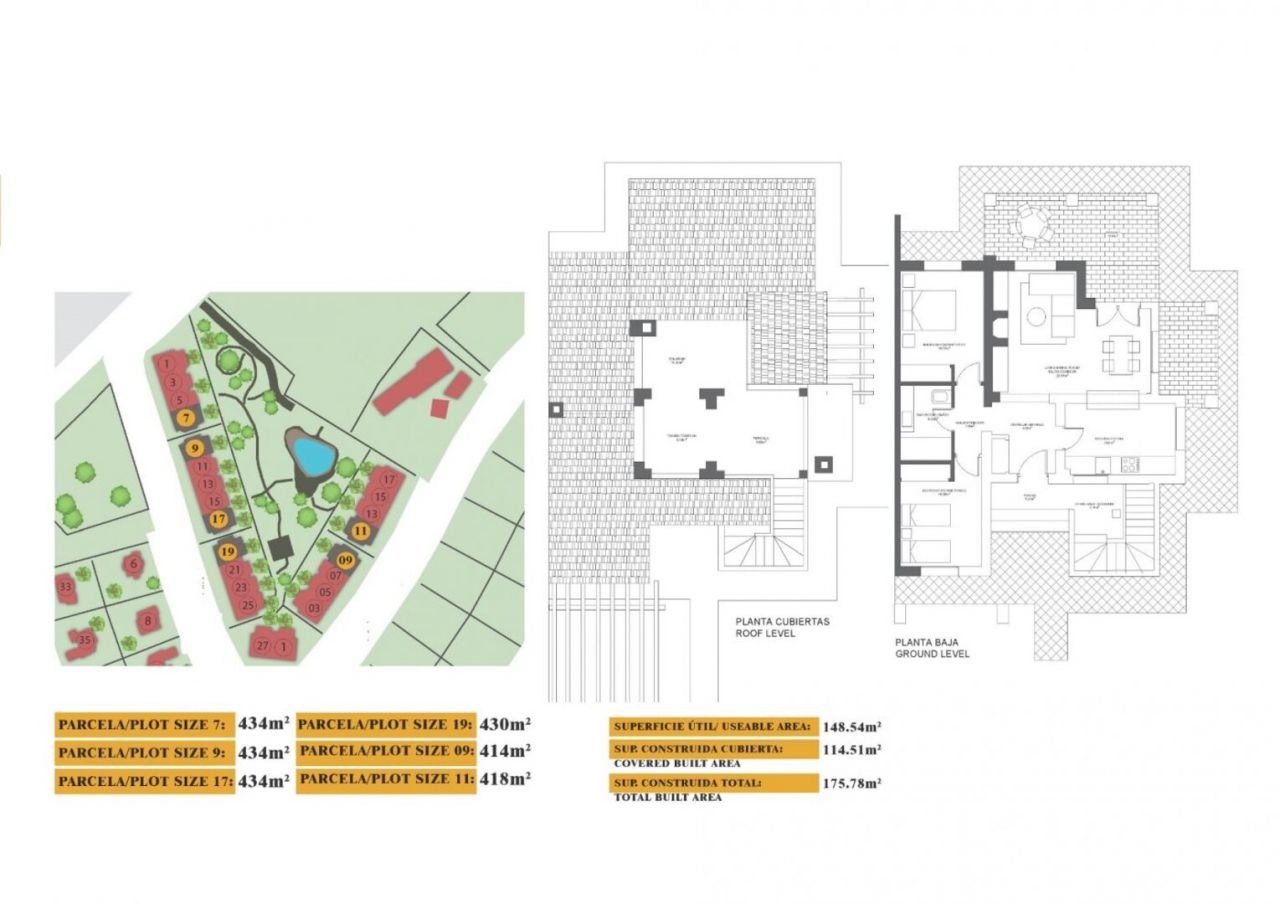
fuente-alamoPŘIPRAVEN K PRODEJI Dvoupatrová vila VE FUENTE ALAMO, MURCIARezidenční komplex městských domů, samostatných a samostatných vil ve Fuente Alamo, Murcia Na výběr je sedm různých modelů domů navržených tak, aby vyhovovaly každému vkusu. Rustikální design v kombinaci s vysoce kvalitními materiály a důrazem na komfortní bydlení si na své přijde každý Obyvatelé této soukromé komunity krásných, prostorných domů si také užijí vlastní společné zahrady a bazény design má 2 ložnice a 1 koupelnu, samostatnou kuchyň, obývací pokoj s terasovými dveřmi vedoucími na krytou verandu a polokrytou střešní terasu Možnost instalace soukromého bazénu za příplatek. Fuente Álamo de Murcia je město a obec v regionu Murcia v jižním Španělsku. Nachází se 22 km severozápadně od Cartageny a 35 km jihozápadně od Murcie. Město leží v povodí řeky Mar Menor, obklopené horami Algarrobo, Los Gomez, Los Victorias a Carrasca Voda z těchto hor teče do Rambla de Fuente Alamo a poté do Mar Menor. Fuente Alamo se nachází 30 minut jízdy od letiště Murcia - Corvera.

























































































