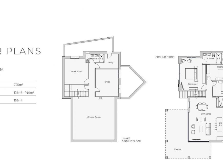
ÚŽASNÉ NOVÉ VILKY V DESERT SPRINGS RESORT Tato krásná, moderní a stylová nemovitost zaujímá záviděníhodnou polohu v Desert Springs Resort a nabízí výběr vil se třemi ložnicemi, které se mohou pochlubit úžasnými výhledy na mistrovské hřiště Indiany a pohoří za ním. Uzavřený dvůr, stinné verandy, soukromá upravená zahrada s výhledem na golfové hřiště, soukromý bazén, vestavěný gril a rozsáhlé střešní terasy jsou jen některé z exteriérových prvků vil. Současný design a přirozené světlo vytvářející pocit prostornosti jsou charakteristickými znaky sofistikovaných interiérů, které nabízejí stylové domovy se současným vzhledem. Mezi vlastnosti patří prostorná vnitřní přijímací místnost, která se otevírá „průchozí“ podlahou na kryté verandy a zahradu a nabízí více než 93 m2 kombinovaného vnitřního/venkovního obytného prostoru a jídelního prostoru, navrženého pro použití jako jedna jednotka v mimořádně privilegovaném klimatu regionu. Hlavní ložnice s vlastní koupelnou má přímý přístup na rozlehlou verandu a bazén. Jsou zde další dvě ložnice, obě s en-suite koupelnami a šatnou. V rozlehlé spodní úrovni se nachází herna, kino, technická místnost, kancelář a čtvrtá koupelna. Standardním vybavením jsou dvojitá okna, kvalitní kuchyňská linka, vestavěné spotřebiče a skříně v ložnicích a bezpečnostní systém. Systém mechanického větrání ve spodním a prvním patře, fotovoltaické panely napojené na zásobník teplé vody a individuálně ovládané teplo/studené klimatizace v obývacím pokoji a ložnicích plně splňují všechny požadavky na řízení teploty.



















