Dům Algorfa
algorfaDům Algorfa
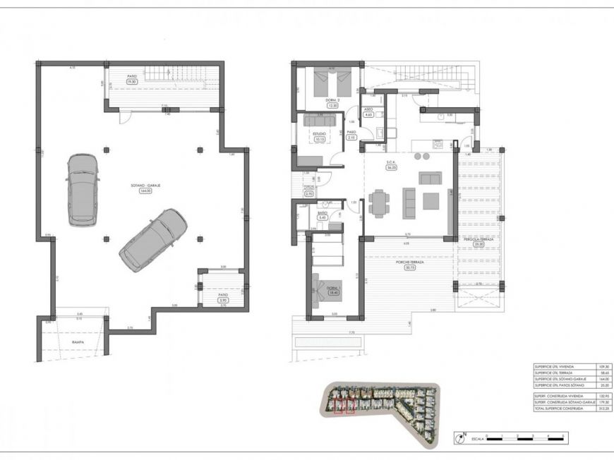
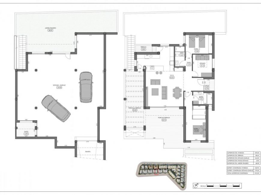
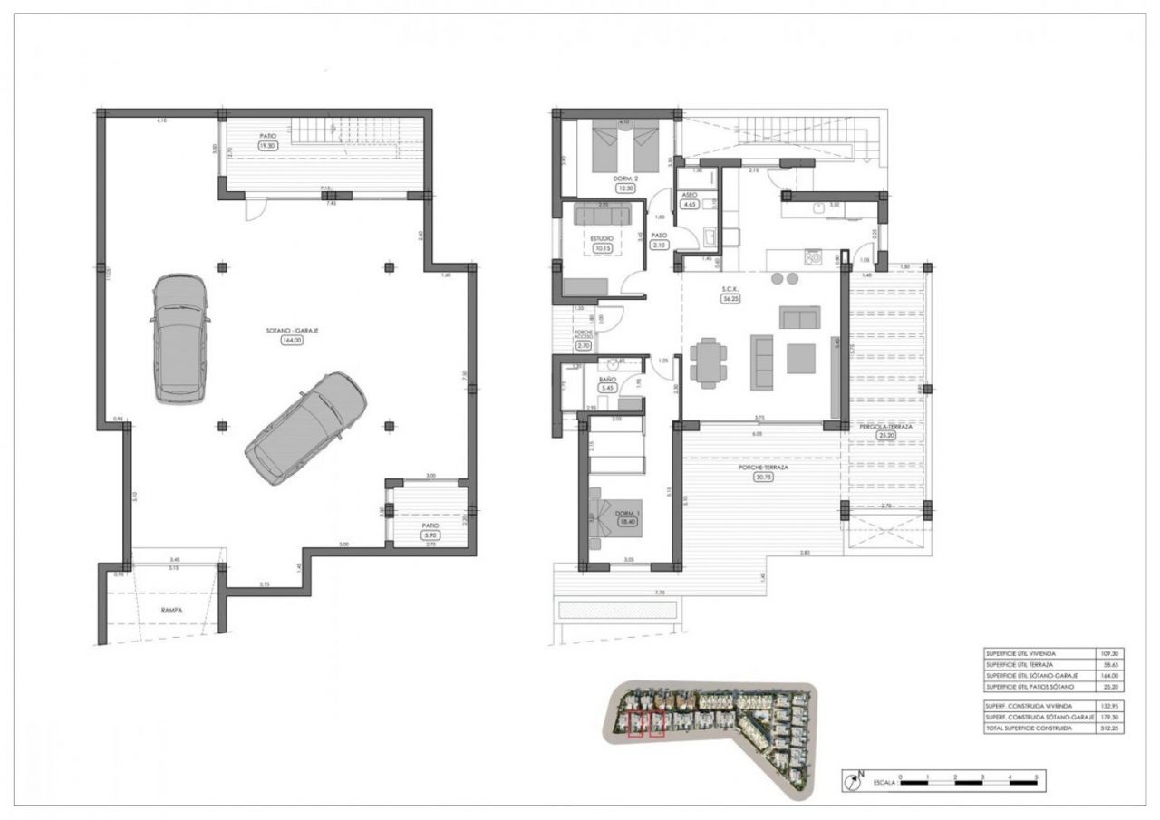
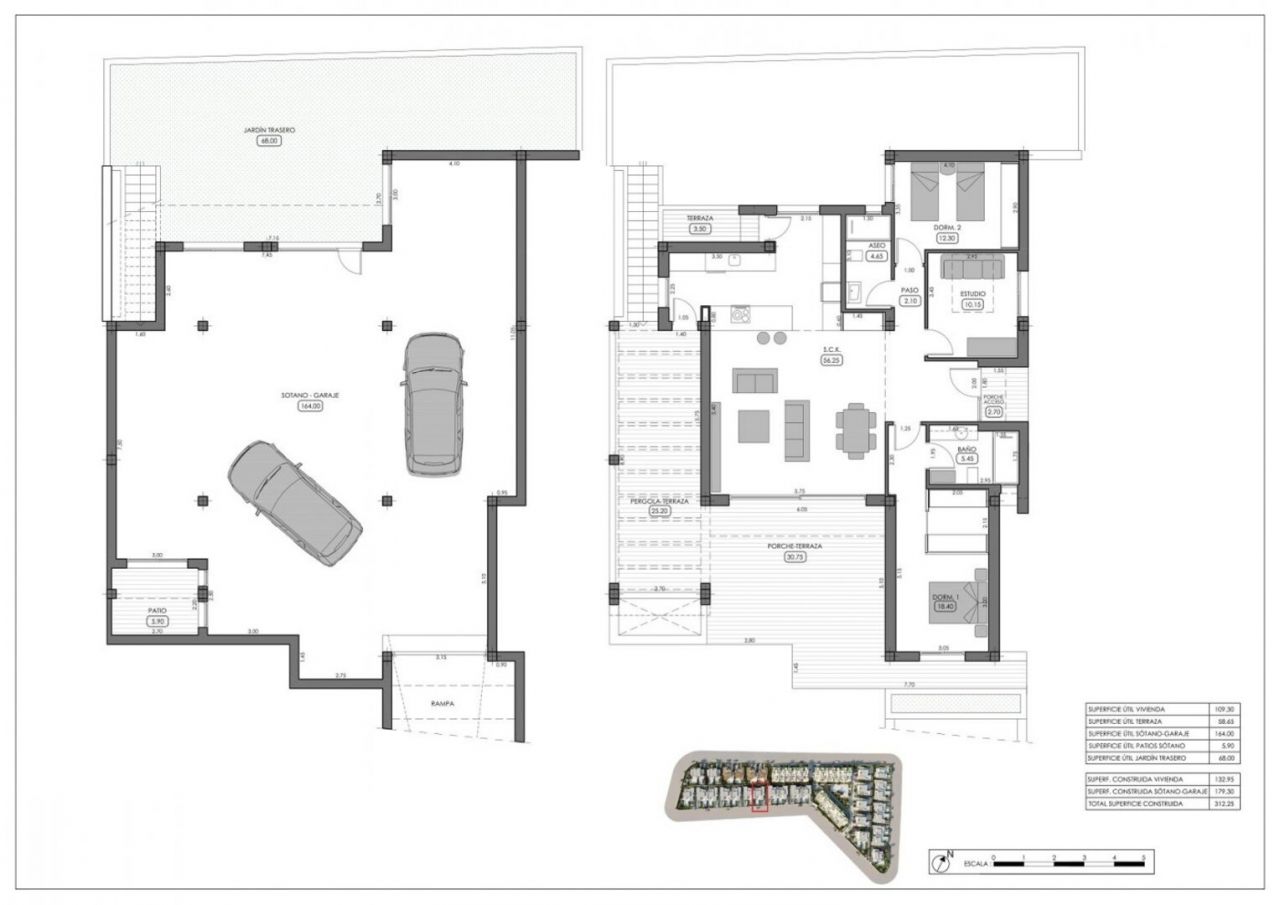
algorfaNOVÝ REZIDENČNÍ KOMPLEX V ALGOŘE Nový rezidenční komplex nezávislých nebo dvojdomů vil a apartmánů s úžasným komunitním bazénem a zelenými plochami na golfovém hřišti La Finca, Algorfa. Vily se skládají ze 3 ložnic, 2 koupelen, otevřené dispozice kuchyně s obývacím pokojem, terasy, soukromé zahrady s bazénem, částečně dokončeného suterénu a rampy s garážovými vraty. Vily mají nainstalovanou klimatizaci, vyhřívané podlahy a sprchové sítě v koupelnách, šatnu v hlavní ložnici. Rezidenční komplex se nachází v golfovém resortu La Finca, v obci Algorfa, v oblasti Vega Baja na jihu Costa Blanca. Jen 15 minut od písečných pláží Guardamar del Segura a pouhých 35 minut od letiště Alicante. Do hlavních měst Almoradi, Benijofar a Ciudad Quesada dojedete za chvíli. Do měst Torrevieja a Orihuela Costa s velkými nákupními centry dojedete za 15 minut.







































