Klienti u nás kupují za 0% provize!

Bungalov Torrevieja

torrevieja

Bungalov Torrevieja

torrevieja
Nemovitost již není v nabídce

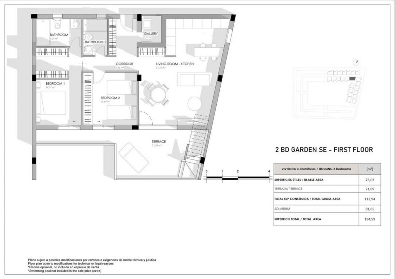
DESIGNOVÝ BUNGALOV U MOŘE Rezidenční nemovitost v nové oblasti jen 250 m od moře. Výborná lokalita v těsné blízkosti městského centra Torrevieja, obklopená službami, obchody a restauracemi. Obecná nemocnice Torrevieja a přístav jsou také nedaleko. Vynikající rezidenční komplex s krásnou zahradou, bazénem a fitness centrem. Užijte si tento kompletní, moderní a okouzlující bungalov s minimalistickým designem.

Poslední navštívené