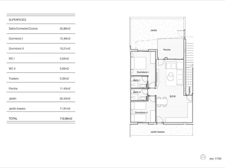
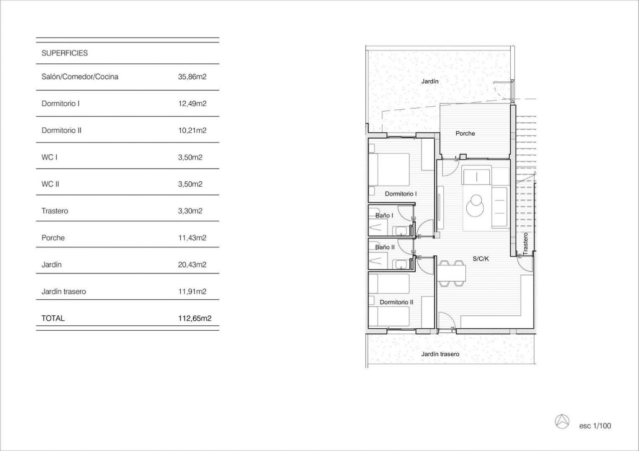
NOVÝ BUNGALOVOVÝ KOMPLEX V SAN MIGUEL DE SALINASNový vývoj bungalovů v San Miguel del Salinas Rezidenční komplex se skládá z 2 a 3 ložnicových bungalovových apartmánů, v přízemí s vlastní zahradou nebo v nejvyšším patře s privátním uzavřeným obytným komplexem se společným bazénem bazény pro dospělé a děti, zelené plochy, dětské hřiště Rezidenční komplex se nachází v San Miguel de Salinas v blízkosti golfových hřišť Las Colinas a Campoamor, nákupních center, lagun Torrevieja a La Mata a písečných pláží Orihuela Costa. Kvalitní paměti :Plně zařízená kuchyně s filtrační skupinou a indukční varnou deskou. Pancéřové vstupní dveře s panoramatickým kukátkem Porcelánové podlahy Kompaktní žaluzie Bílé laminované skříně s podkrovím v ložnicích Předinstalace splitové klimatizace v obývacím pokoji a ložnici San Miguel de Salinas je obec ve Valencijském společenství ve Španělsku. Nachází se na jihu provincie Alicante, v regionu Vega Baja del Segura, v blízkosti regionu Murcia je 35 minut jízdy a letiště Murcia Corvera je vzdáleno přibližně 1 hodinu.





































