Apartmány / byty Costa-del-sol
costa-del-solApartmány / byty Costa-del-sol
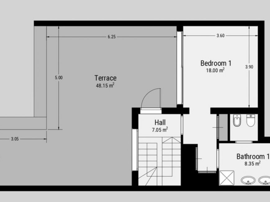
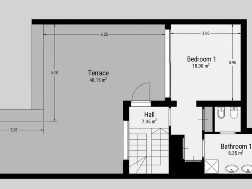
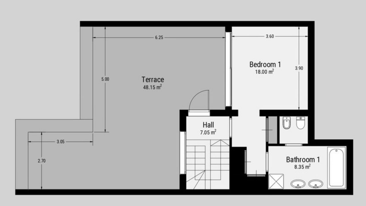
costa-del-solNa prodej je nádherný mezonetový penthouse se 3 ložnicemi v krásném komplexu Alminar de Marbella. Tento apartmán se nachází na velmi soukromém místě, s nádherným výhledem na horu La Concha, výhledem na moře a také s výhledem na krásné zahrady, které komplex nabízí. Penthouse se rozkládá na 2 podlažích, v přízemí jsou dvě velké ložnice (jedna s vlastní koupelnou), obě ložnice mají přístup na terasy. Ve stejném patře najdete prostornou kuchyň s technickou místností a velký obývací pokoj se vstupem na útulnou terasu s výhledem do společné zahrady. Po schodech se dostanete do velké hlavní ložnice se spoustou úložného prostoru a vlastní koupelnou. Na stejné úrovni je přístup na prostornou střešní terasu jak z ložnice, tak ze schodiště. V ceně jsou 2 velké podzemní garáže (25 m2, resp. 19 m2) a velmi velký sklad 28 m2. Prohlídky jsou vysoce doporučeny!



























































