Apartmány / byty Costa-del-sol
costa-del-solApartmány / byty Costa-del-sol
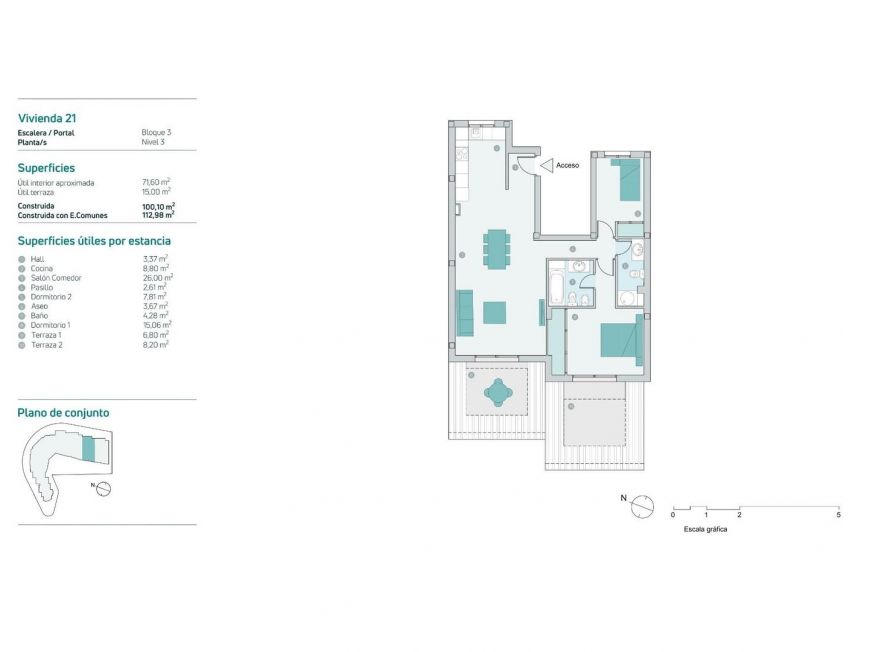
costa-del-solNOVOSTAVBA APARTMÁNŮ V ISTANĚ Nový rezidenční komplex v Istaně nedaleko Marbelly se skládá z 22 apartmánů s 1 a 2 ložnicemi, rozmístěných ve třech blocích s velkými terasami a panoramatickým výhledem na moře a Embalse de la Concepción. Většina bytů má parkovací stání a sklepy. Komplex má společný bazén a zahradní plochy, které si můžete užít během teplejších měsíců. Obytný komplex je obklopen malebnou přírodou. Istán je město a obec v provincii Malaga v Andalusii v jižním Španělsku, s odhadovanou populací 1400 v roce 2005. Nachází se pod pohořím Sierra Blanca v údolí řeky Rio Verde, 15 km severozápadně od Marbelly a pobřeží Středozemního moře. Nachází se na jižním svahu pohoří Sierra de las Nieves. Je také vedle velké nádrže vytvořené přehradou Presa de la Concepción, která byla postavena v roce 1972, aby poskytovala pitnou vodu městům podél celého Costa del Sol.

































































