alegria Torrevieja
torreviejaalegria Torrevieja
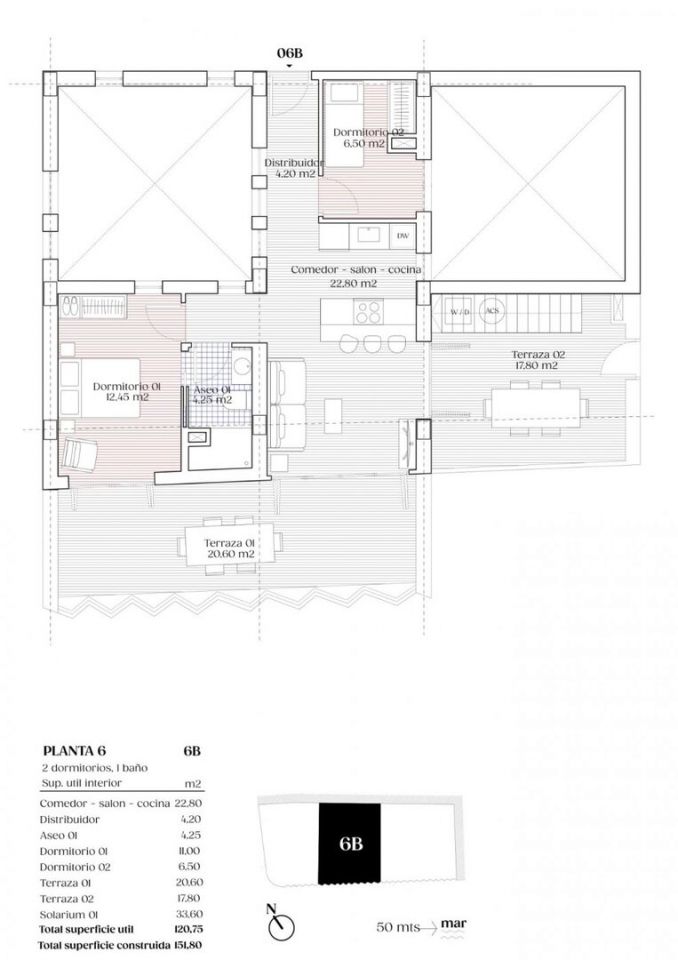
torreviejaNOVÉ APARTMÁNY BLÍZKO PLÁŽE V TORREVIEJ Apartmány v nové budově s jednou z nejlepších lokalit, které můžete najít - pouhých 50 metrů od pláže Los Locos. Rezidenční komplex má 22 bytů se 2 a 3 ložnicemi a 2 koupelnami, otevřený obývací pokoj, velká prosklená okna, kuchyň vybavená špičkovými značkovými spotřebiči a vestavěnými skříněmi, plně vybavené koupelny s vyhřívanou podlahou. Nový rezidenční komplex s moderním designem a vysokou kvalitou zpracování má krásný společný bazén a zelené plochy pro relaxaci. Torreviejas Playa de Los Locos má příjemnou promenádu s mnoha bary, restauracemi a chiringuitos, kde můžete ochutnat autentické španělské paella. Torrevieja je španělské město v provincii Alicante na pobřeží Costa Blanca. Je známý pro své typicky středomořské klima a pobřeží. Podél jeho písečných pláží jsou nábřeží s letovisky. Malé muzeum moře a soli hostí výstavy o historii rybolovu a výroby soli ve městě. Ve vnitrozemí města má přírodní park Lagunas de La Mata Torrevieja stezky a dvě solné laguny, jednu růžovou a druhou zelenou. Letiště Alicante je vzdálené 40 minut jízdy a letiště Murcia přibližně 1 hodinu jízdy.







