Nemovitost již není v nabídce
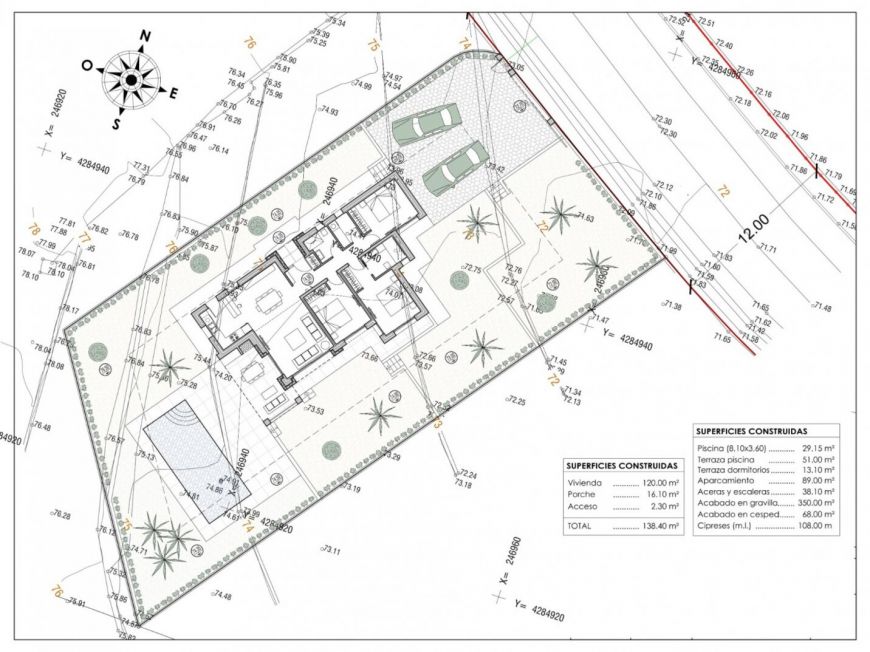
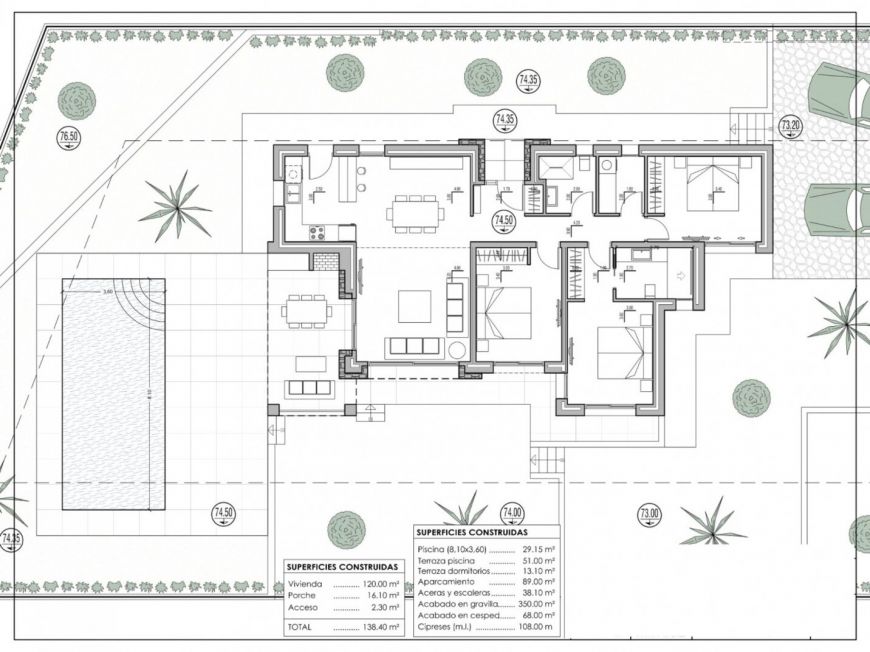
Prodej vily v Benisse, celková plocha 138 m2, pozemek 800 m2. Skládá se ze 4 místností. Nachází se 1500 m od moře.



















