houses torrevieja
torreviejahouses torrevieja
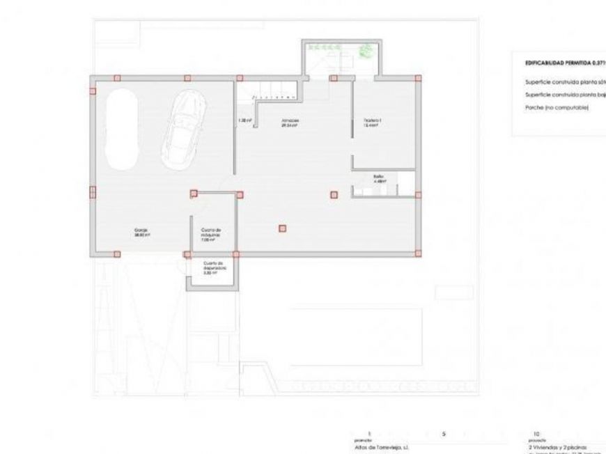
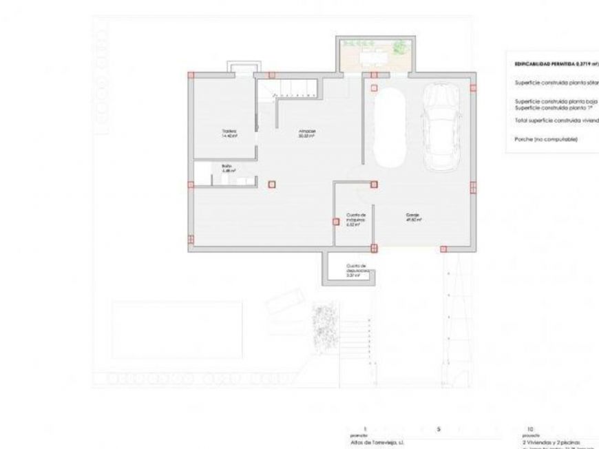
torreviejaLocated in Los Altos, (Next Los Balcones). Orientated to the Southeast.Property located on a plot of 400 m2, with a constructed area of 280 m2, distributed on 2 floors with 140 m2 on the first floor and a basement with 140 m2. It consists of 3 double bedrooms with 4 bathrooms, Living - Dining room, Kitchen and the house is furnished.EQUIPPED: Private Pool, Solarium / Terraces, Air Conditioning, Underfloor Heating and Sanitary Hot Water with Aerotermia.IT HAS 2 MODELS: In a single Level or in 2 Levels.COUNTS with the services, schools, hospitals, supermarkets a few meters. Distance to the sea 3 minutes by car.These villas are located in one of the privileged areas of the Costa Blanca South, more specifically in Los Altos, 3 minutes from Punta Prima Beach, Cala Ferry, close to all services; restaurants, cafes, shops, shopping centers, schools, hospitals, as well as access to the highway.







































