Недвижимость больше не предлагается
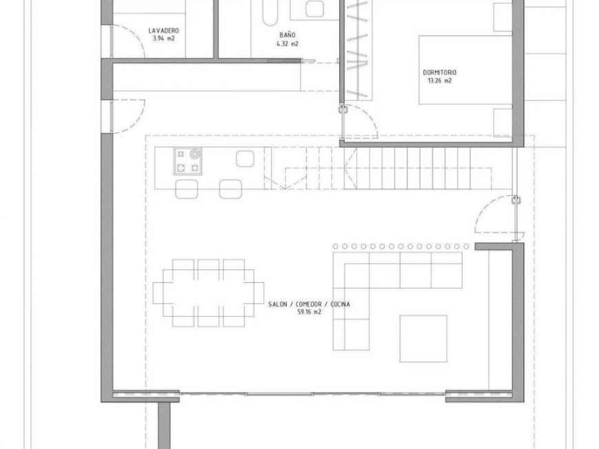
Комплекс из 2 двухуровневых вилл в Пинар де Камповерде с 4 спальнями и 3 ванными комнатами площадью 180 м2, большой участок площадью 700 м2. Полностью оборудованную кухню и гостиную-столовую. Индукционная плита на острове. Полностью оборудованы ванные комнаты. Частный бассейн от 38 м2 с зоной джакузи. Террасы от 24 м2, солярий с видом на море, частный сад. Установка видеодомофона.Предварительная установка для кондиционирования воздуха. Парковка на участке. Ключи будут готовы в июле 2025 года. Более подробная информация по телефону WhatsApp +34 664 25 63 71.





































