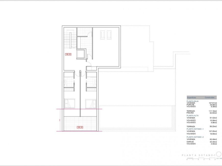
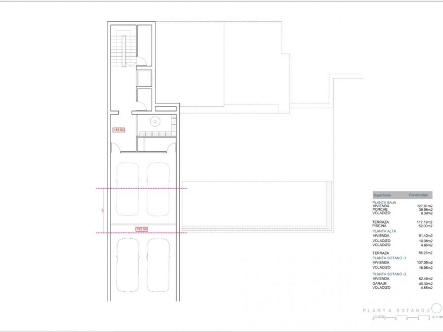
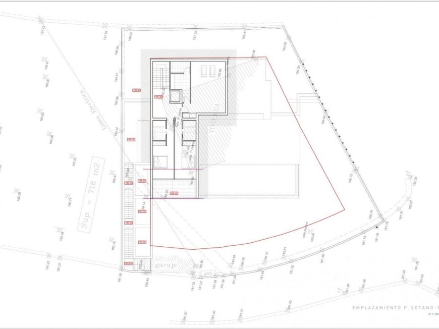
НОВАЯ РОСКОШНАЯ ВИЛЛА В БЕНИССЕ Новая роскошная вилла в Бениссе с видом на море и Пеньон-де-Ифач. Эта вилла с открытой бетонной отделкой имеет 4 этажа, которые соединены лифтом и внутренней лестницей. На первом этаже находится большая открытая гостиная-столовая-кухня и гостевой туалет. Кухня полностью оборудована и имеет остров для приготовления пищи. Раздвижные двери на уровне потолка дают прямой доступ к просторной террасе и бассейну. На верхнем этаже расположены две спальни с ванными комнатами и терраса. В доме есть 2 подвала. В подвале № 1 находятся две спальни, каждая со своей ванной комнатой и прачечная. В подвале № 2 находится тренажерный зал, подвал и гараж на 4 машины. В доме установлены кондиционеры (с воздуховодами) и центральное отопление с тепловым насосом. В доме установлена автоматическая входная дверь с отдельным пешеходным входом и домофоном. На одном уровне с главным домом находится бассейн. Включает внешнюю отделку с автоматическими жалюзи и москитными сетками в спальнях, встроенные шкафы с модулями и базовую установку сигнализации. Бенисса расположена в северной части побережья Коста Бланка, недалеко от автомагистрали A-7; дорога до аэропорта Аликанте и обратно занимает чуть больше часа. Городок небольшой, но очаровательный со своей средневековой архитектурой и очаровательными площадями. Хотя расстояние до моря всего 5 километров - по полету ворона, ближайшие пляжи по дороге находятся примерно в 11 километрах, а приморские города Кальпе (на юге) и Морайра (на северо-востоке) - примерно в 12 километрах. Виды на Средиземное море, погода, дикая природа, качество света, архитектура городов, Бенисса соблазнит вас. Аэропорт Аликанте расположен в 1 часе езды.

























